
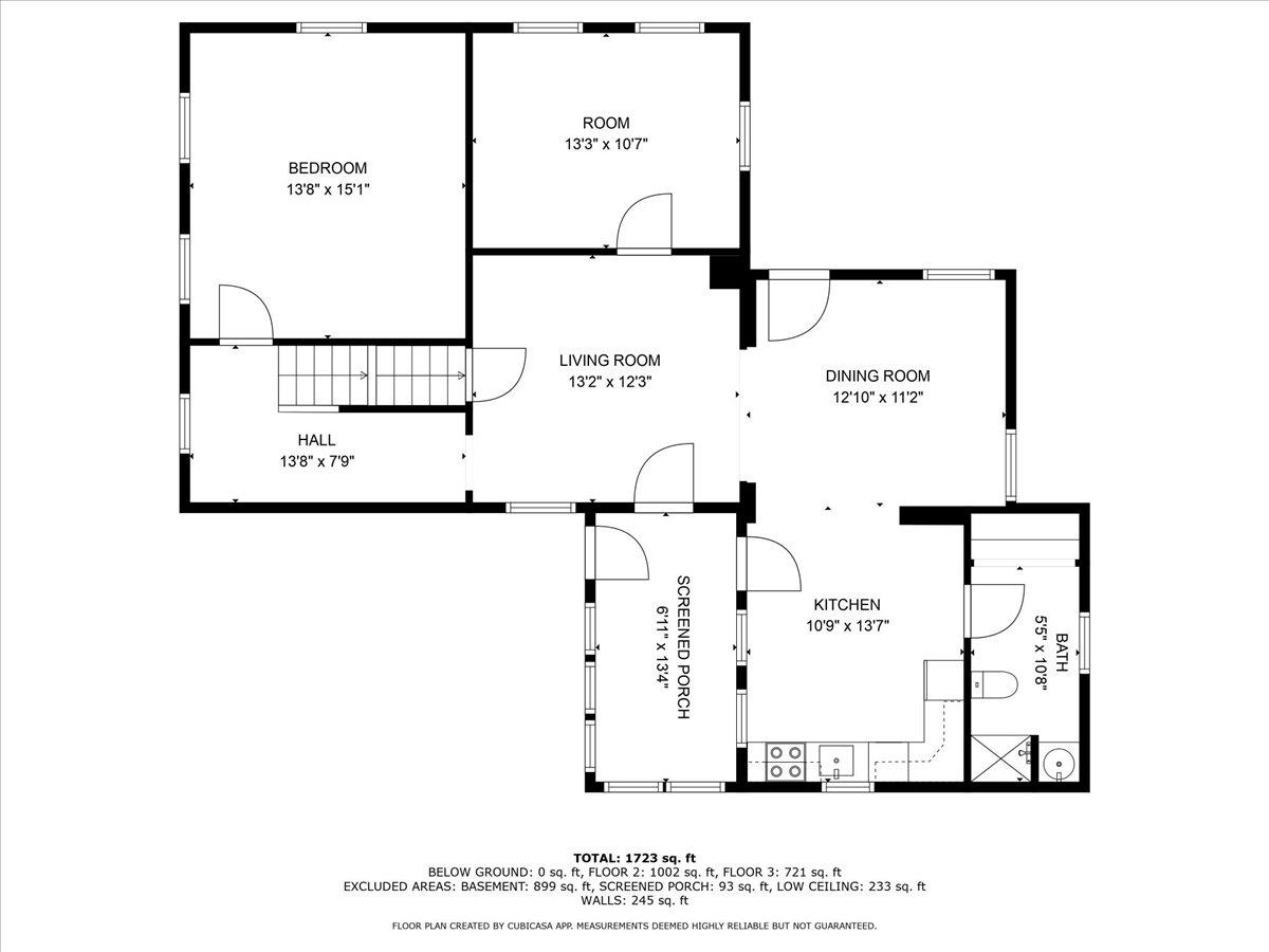
Here is an opportunity to get into a five bed two bath Winooski home!! Located close to everything this property offers many conveniences for shopping, the bus route, local attractions and a soon to be a new Main St! On the main level you will find an enclosed porch to welcome you in, an open kitchen with brand new appliances, living areas, laundry hook ups, bedroom and dining area. You also have a full bathroom with a second porch out back. Upstairs you have the remaining bedrooms and an additional full bathroom. This home features new flooring throughout, newer windows and a three year young roof. Other improvements include additional drainage inside and outside to keep the basement dry for additional storage. The property also offers a shed for storage of outdoor equipment. Come see this property today and take advantage of a great location and a large home in the heart of Winooski!
| MLS # | 5046500 |
|---|---|
| Listing Type | For Sale |
| Style | House |
| Sub-Type | Resale |
| Status | (30) Under Contract - Pending |
| Year | 1900 |
| Days On Site | 147 |
| Listing Provided By | Flex Realty | Flex Realty Group |
| Bed(s) | 5 |
|---|---|
| Bath(s) | 2 Total |
| SQ Feet | 2,290 |
| Basement | Y |
| Story(s) | 1 |
| Zoning | Residential |
| Acreage | 0.07 |
| Rooms Total | 10 |
|---|---|
| Cooling | None |
| Heating | Natural Gas, Baseboard |
| Interior Features | Attic with Hatch/Skuttle, Dining Area, Laundry Hook-ups, LED Lighting, Natural Light |
| Appliances | Dishwasher, Electric Range, Refrigerator, Exhaust Fan |
| Exterior Features | Porch, Covered Porch, Shed, Window Screens, Double Pane Window(s) |
|---|---|
| Roof | Metal, Asphalt Shingle |
| Construction Materials | Wood Frame, Aluminum Siding |
| Foundation Details | Stone |
| Lot Features | City Lot, Level, Sidewalks |
| Garage Yes / No | No |
|---|
| Utilities | Phone, Cable |
|---|---|
| Electric | 150 Amp Service, Circuit Breakers |
| Sewer | Public Sewer |
| Tax Annual Amount | 6636.63 |
|---|---|
| Tax Year | 2025 |
| State | VT |
|---|---|
| County | Chittenden |
| City | Winooski |
| Zip Code | 05404 |
| Area | VT Chittenden |
| State | VT |
|---|---|
| County | Chittenden |
| City | Winooski |
| Zip Code | 05404 |
| Area | VT Chittenden |